Családi ház csendes helyen két lakrésszel

5469 Nyomtatás Ajánlás Facebook

Érsekvadkert egy csendes utcájában a falu szélén került eladó sorba ez a nagykapus parasztház, így ideális választás azoknak, akik szeretnének elbújni a város zajától. Az ingatlan jellegét tekintve igaz, hogy ez a ház már csak 1969-ben épült, viszont az ezt megelőző évtizedekre visszatekintve az ilyen stílus egyfajta státuszszimbólumként is szolgált a környéken.

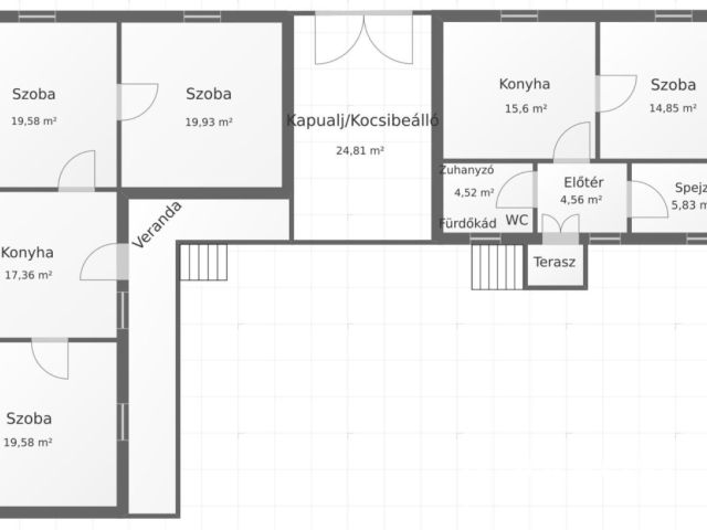
A lakótér 122 m², így kényelmes otthon lehet akár egy nagyobb családnak is vagy két generációnak, mivel két lakrészből áll. A házat egy fedett kapualj osztja két részre, az egyik felében egy szoba, konyha, fürdőszoba, és egy spejz található, melynek a hasznos alapterülete 45,5 m², falazata tégla. Ebben a lakrészben a fűtést gázkonvektorok és cserépkályha biztosítja. A fürdő 2023-ban teljes felújításon esett át. A másik lakrész vegyes falazatú, amelyben 3 szoba és egy konyha található, hasznos alapterülete 76,5 m², itt a fűtésről hangulatos cserépkályhák gondoskodnak. Ezen lakrész elejét egy nyitott veranda színesíti. A szobák tágasak és világosak, így könnyedén berendezhetőek.
A főépület hátsó részével egybe lett építve két tárolóhelyiség az egyik 15,5 m², a másik pedig 16,5 m². Ezek ideálisak lehetnek kerti eszközök, bicikli, szerszámok vagy fa tárolására. A ház alatt egy 14,5 m²-es pince helyezkedik el, amely biztosítja a zöldség és gyümölcs megfelelő tárolását.

A bruttó telekméret 2721 m², ami bőséges helyet biztosít a pihenésre, kikapcsolódásra, kertészkedésre és akár állattartásra is. A telekhatáron fúrt kút található, ami a szomszéddal van közös használatban, ez nagyon praktikus lehet a kerti öntözéshez.

Érsekvadkert Budapesttől 65 km-re, Váctól 35 km-re, Rétságtól 10 km-re és Balassagyarmattól 15 km-re helyezkedik el a 22-es főút vonalon, Nógrád megye délnyugati részén. Munkahelyből nincs hiány a környéken, a rétsági- és a balassagyarmati ipari parkokban lévő gyárak számos munkalehetőséget biztosítanak. A fővárosba óránként van buszjárat. A településen van általános iskola, óvoda, bölcsőde, orvosi rendelő és bevásárlási lehetőség. Természeti adottságok szempontjából is igen kedvező a fekvése, mert a Börzsöny lábánál található, illetve a Cserhát hegyvonulatai és a Bánki-tó, mindössze 10 percen belül megközelíthető autóval. Ezért a természetkedvelők és túrázni vágyók számára is tökéletes ez a hely.
Ha lát benne fantáziát, vegye fel velem a kapcsolatot, ha pedig kedvező hitellehetőséget szeretne igénybe venni az ingatlan vásárláshoz, abban is tudok segíteni!

Gréczi Péter
PRÉMIUM

Gréczi Péter

1 éve a Városi Ingatlaniroda tagja
Ingatlanértékesítő
Balassagyarmat
+36 (30) 439 8211
Észrevétel a hirdetéssel kapcsolatban
Egy ingatlanos naplója