Ennél jobb helyen nem tud vállalkozni Békéscsabán!

7610 Nyomtatás Ajánlás Facebook

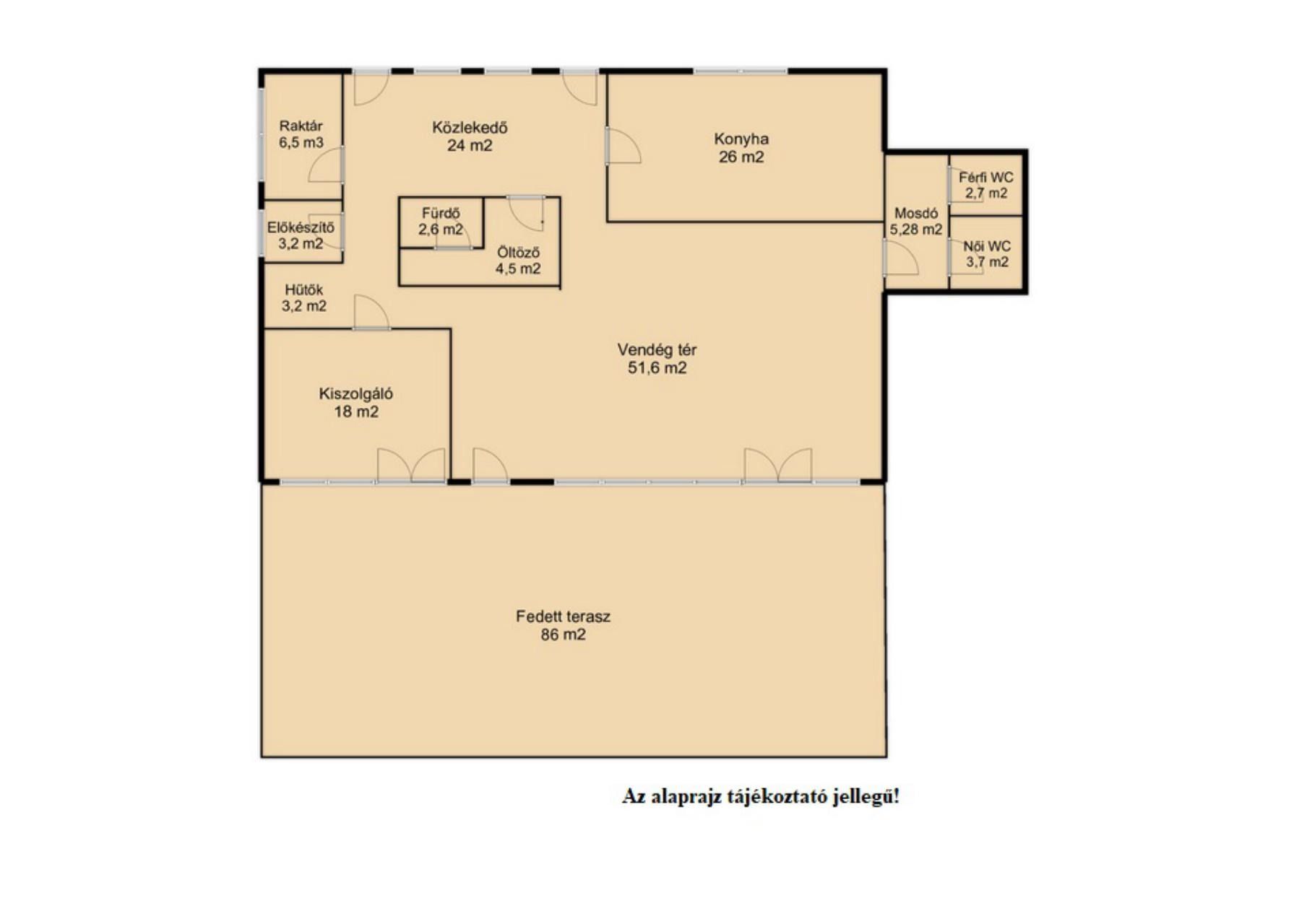
Eladásra kínálom Békéscsaba város belvárosi részén a Csaba Center szomszédságában található 1980-as években épült és 2015-ben teljesen felújított, tégla falazatú, 139 m2-es üzlethelységet. Az üzlethelység jelenleg étteremként van üzemeltetve, amelyhez egy 86 m2-es hangulatos terasz is tartozik. A felújítások során a teljes elektromos hálózat fejlesztése ( 3x50 A, ipari áram), a hidegburkolatok, a nyílászárók cseréje is megtörtént a legmodernebb fotocellás, alumínium nyílászárókra. Az üzletben továbbá ki lett alakítva egy mai kornak megfelelő, elegáns vizes blokk (férfi, női WC) is. Az üzlet kialakítása is kiváló, mivel a sétáló utcáról mindössze egy üvegfal választja el a 18 m2-es kiszolgáló részt és a közel 52 m2-es vendéglátó részt. Ezen egységek mögött lett kialakítva egy jól felszerelt 26 m2-es konyha, személyzeti öltöző, fürdőszoba, raktárhelységek, előkészítő és hűtők. Az üzlet fűtéséről egy Westend gázkazán és padlófűtés gondoskodik.
A vételárban benne van továbbá egy az üzlet mellett lévő 10 m2-es fagyizó is teljes felszereléssel, amelyhez két terasz összesen 40 m2 is tartozik.
Az ingatlan hasznos lakóterülete: 139 m2.
Fedett teraszok területe: 126 m2.
Fagylaltozó területe: 10 m2.
Amennyiben ez a tökéletes helyen lévő, jó elosztású, modern, tágas és nagy teraszokkal rendelkező felújított üzlethelység felkeltette érdeklődését hívjon bizalommal a 06/70 4574-392 telefonszámon.
Igény esetén a teljes adás-vételi folyamatot elvégezzük (ügyvéd, hitelügyintéző, energetikai vizsgálat).

Szentléleki Tamás
PRÉMIUM

Szentléleki Tamás

6 éve a Városi Ingatlaniroda tagja
Ingatlanértékesítő
Gyula
+36 (70) 457 4392
Észrevétel a hirdetéssel kapcsolatban
Egy ingatlanos naplója