Két generációs családi ház a románvároson!

4614 Nyomtatás Ajánlás Facebook

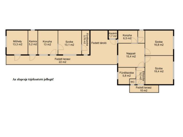
Eladásra kínálom Gyula fürdővárosának fürdő övezeti részen, a Várfürdőtől és a belvárostól mindössze 2 perc sétával megközelíthető 70-es években épült és 2016 évben felújított tégla falazatú családi házat. A ház szerkezetileg kifogástalan állapotban van, külső hőszigetelése is megtörtént. Az ingatlanhoz tartozik egy 552 m2-es teljesen körbekerített, parkosított udvar is, ahol egy nagy és hangulatos fedett terasz is építve lett. A felújítás során 2020 évben cserélve lett a teljes fűtésrendszer egy korszerű BAXI kondenzációs kazánra és lapradiátorokra. A ház egy főépületből ( 80 m2 ) és egy melléképületből ( 40 m2 ) áll. A főépület alacsony költségből az emeleti részen bővíthető, mivel az emeleti részen az összes közmű megtalálható.
Főépület: Nappali, konyha, 2 szoba, fürdőszoba, előszoba, Wc, kamra.
Melléképület: Szoba, konyha, fürdőszoba, WC.
Az ingatlan lakóterülete: 120 m2.
Fedett teraszok: 32 m2
A telek: 552 m2.
Az ingatlan per-teher mentes és azonnal költözhető!
Amennyiben ez a kiváló helyen lévő, tökéletes elosztású, akár többgenerációs családoknak alkalmas családi ház felkeltette érdeklődését hívjon bizalommal a +36 70 / 457-4392 telefonszámon.

Ofer spre vânzare, în orașul balnear Gyula, în zona din apropierea băilor termale, la doar 2 minute de mers pe jos de la Băile Cetății și de centrul orașului, o casă familială cu zidărie din cărămidă, construită în anii ’70 și renovată în 2016. Casa se află într-o stare structurală impecabilă, iar termoizolația exterioară a fost realizată. Proprietatea dispune de un teren de 552 m2, complet împrejmuit și amenajat peisagistic, unde a fost construită și o terasă mare, acoperită și plăcută. În cadrul renovării, în anul 2020 a fost înlocuit întregul sistem de încălzire cu o centrală termică în condensare BAXI modernă și radiatoare panou. Casa este compusă dintr-o clădire principală (80 m2) și o anexă (40 m2). Clădirea principală poate fi extinsă cu costuri reduse la etaj, deoarece toate utilitățile se găsesc deja la nivelul superior.

Clădire principală: living, bucătărie, 2 camere, baie, hol, WC, cămară. Anexă: cameră, bucătărie, baie, WC. Suprafața locuibilă a proprietății: 120 m2. Terase acoperite: 32 m2. Teren: 552 m2.

Dacă această casă familială, aflată într-o locație excelentă, cu compartimentare perfectă și potrivită chiar și pentru familii multigeneraționale, v-a stârnit interesul, vă rog să mă contactați cu încredere la numărul de telefon +36 70 / 457-4392.

Szentléleki Tamás
PRÉMIUM

Szentléleki Tamás

6 éve a Városi Ingatlaniroda tagja
Ingatlanértékesítő
Gyula
+36 (70) 457 4392
Észrevétel a hirdetéssel kapcsolatban
Egy ingatlanos naplója