Nyaraljon egész évben

4438 Nyomtatás Ajánlás Facebook

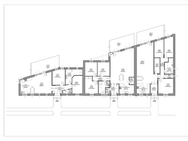
Eladó Hódmezővásárhelyen, Új-kishomokon a Mező utcában, új építésű 3 lakásos sorházban, 115,55 m2 hasznos alapterületű tégla ház. Az amerikai konyhás, nappali + 3 hálószobás ház remek tájolású, kényelmes életteret biztosít 4-5 fős család számára. Az ingatlanhoz ~ 420 m2 önálló kertrész tartozik, valamint társasház részére tervezett közös (6,00m x 3,00m) medence és napozótér.
A mai kor építési-, szerkezeti- és energetikai követelményeinek tökéletesen megfelelő épület tégla falait 15 cm hőszigeteléssel látják el, a vasbeton födém 30 cm hőszigeteléssel készül, későbbi tetőtér beépítése lehetséges. Az energiatakarékos otthon fűtését, hűtését és meleg-víz ellátását központi levegő-víz rendszerű hőszivattyú biztosítja.
A kivitelezés tervezett befejezése 2026 október, a feltüntetett ár a szerkezetkész állapotra vonatkozik.

Az ingatlan paraméterei:
- Telek: ~420m2
- Lakótér: 115,55 m2
- Terasz: 22,30 m2
- Konyha-étkező: 13.31 m2
- Nappali: 39,61 m2
- Szobák: 14,44 m2, 11,61 m2, 10,40 m2
- ~100 m2 privát, csak a tulajdonosok számára elérhető, medence és napozó-játszó tér

A szegedi bejárás autóval 15 percet vesz igénybe, Vásárhely belváros autóval 10 perc.
Az ingatlannal kapcsolatos kérdéseivel várom hívását, a hét bármely napján.

Ügyfeleink számára irodánk teljes jogi hátteret, adás-vétellel kapcsolatos térítésmentes jogi tanácsadást biztosít.
Bank semleges hitelügyintézéssel, díjmentes hitelszűréssel és tanácsadással is hozzájárulunk, hogy megtalálja az ön számára legkedvezőbb megoldást.

Sárai-Kovács Ágnes
PRÉMIUM

Sárai-Kovács Ágnes

5 éve a Városi Ingatlaniroda tagja
Ingatlanértékesítő
Hódmezővásárhely
+36 (30) 742 5020
Észrevétel a hirdetéssel kapcsolatban
Egy ingatlanos naplója