Zagyvapálfalván 4 szobás családi ház eladó!

5071 Nyomtatás Ajánlás Facebook

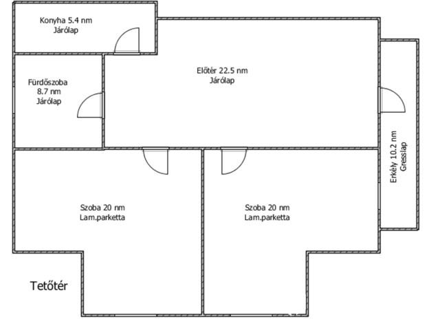
Salgótarjánban (Zagyvapálfalva), felújított, 3 szintes, 3 fürdőszobás, 4 szobás, 250 nm-es családi ház eladó!

A családi ház 1969-ben épült, 2000-ben teljes körű felújításon esett át, tégla szerkezetű, 4 cm-es külső szigeteléssel ellátott, cseréptetős, esztétikailag és gépészetileg felújított állapotú.

A külső nyílászárók műanyag profillal szereltek.

Az ingatlanban a fűtést gáz cirkó kazán, a meleg víz ellátást villanybojler biztosítja.

A ingatlanhoz tartozó 2516 nm-es dupla telek az épület mellett és mögött helyezkedik el, sík, körbekerített, területén melléképület és gépkocsibeálló található.

A TESCO, LIDL, SPAR, óvoda, iskola, posta, orvosi rendelő, gyógyszertár, buszmegálló 5 perc alatt gyalogosan elérhető.

Tatár Tamás
PRÉMIUM

Tatár Tamás

8 éve a Városi Ingatlaniroda tagja
Régióigazgató
Salgótarján
+36 (70) 439 8123
Észrevétel a hirdetéssel kapcsolatban
Egy ingatlanos naplója